斯图加特“游客之家” | Ippolito Fleitz Group | 2025 | 德国



在现有建筑中建造斯图加特“游客之家”
斯图加特中心广场坐落于城市核心,是汇聚本地居民与八方游客的活力中心。这里不仅每周举办农贸市集,设立葡萄酒村,更有世界闻名的圣诞市集,全年无休地跃动着城市脉搏。新近落户于此的斯图加特“游客之家” 选址于前Breitling服装店旧址。我们荣幸受托,负责其内部游客中心及配套办公空间的室内设计。


vsszan120973310000541.jpg



每日开放的“i-Punkt”游客中心坐落于首层,是游客认识斯图加特的起点。而整座“游客之家”则构建了一个立体体验空间:在提供专业旅游咨询服务的基础上,有机整合了街层与屋顶餐厅,并容纳了斯图加特营销有限公司的办公区。“游客之家”同时服务于旅客和市民,其功能已超越传统游客中心,成功转型为城市腹地一个满足多元需求的交流枢纽。
旧址新生:城市地标的再定义
在斯图加特中心广场上,缤纷的战后建筑群中矗立着1950年代建成的市政厅立面。位于广场尽头的Breitling服装店曾为这组建筑画上圆满句点。随着商场关闭,斯图加特市政府决定将此黄金地段改造为 “游客之家” ,旨在打造一个能同时服务市民和游客的核心场所。
大楼的全面翻修改造由asp建筑事务所负责,事务所严格遵循资源节约理念,并大量采用有机基材。面向市集的新立面以四组垂直框架为特色,其动态镂空设计构成了开阔的窗体轮廓,将室内景象引入视野,使建筑内部的动态场景成为立面的一部分,创造出独特的通透感与探索欲,实现了内外空间的无缝衔接。


vsszan120973310000542.jpg



“i-Punkt”游客中心:城市感受从视觉开始
离“游客之家”不远的地方就是斯图加特著名的Breuninger购物中心,因此每天都会有许多前往那里购物和散步的人群从“游客之家”前经过。就在这个醒目的街角,互动舞台将建筑向外界敞开。室内设有电影院级别展演空间,巨幅的LED荧幕全天候播放品牌影像,即便闭店时段亦能吸引街头目光。这个兼具数字与实体展示功能的空间,持续呈现和更新区域品牌合作伙伴高品质内容,让途径此处的人们不禁驻足,流连忘返。


vsszan120973310000543.jpg
vsszan120973310000544.jpg
vsszan120973310000545.jpg
vsszan120973310000546.jpg



i-Punkt游客中心拥有挑高至二层的开阔空间,其内部景致从广场即可瞥见,形成强大的视觉吸引力。区域内,标志性的立柱不仅巧妙地划分了功能区,更延伸了空间的视觉纵深;结合镜面天花板的反射,共同营造出强烈的视觉张力。这些立柱被赋予了实用功能:朝向广场两侧的柱面悬挂大幅景点广告,而背侧则设置了展架,用于陈列丰富的本地资讯印刷品。


vsszan120973310000547.jpg



带走属于城市的味道与记忆
作为“游客之家”的核心,i-Punkt游客中心是整座建筑身份与公众形象的关键载体。我们通过一套统一的设计语言,一体化整合了产品与信息的呈现,不仅对外传递出清晰的品牌信息,更有效激发了访客的消费意愿。数字与模拟媒介界面协同作用,共同推广斯图加特、周边地区乃至巴登符腾堡州的旅游魅力。空间内的资讯区、购物区及营销伙伴展示区被清晰划分,确保访客能够直观地导航;而灵活的展示家具则赋予了空间高度的适应性,可根据不同需求轻松重组。


vsszan120973310000548.jpg
vsszan120973310000549.jpg
vsszan1209733100005410.jpg



在i-Punkt游客中心,本地特产作为地域风情的真实代言人占据核心位置。游客与本地居民皆可在此发现精心甄选的手工艺品、特色美食、礼品及纪念品。宽敞的陈列柜与醒目的酒架彰显着本地葡萄酒种植者的多元风貌,将斯图加特及其周边地区塑造成追求设计感的美食爱好者必访之地。相邻餐厅的框景设计为体验画龙点睛,邀您亲身探索这座城市的味觉魅力。


vsszan1209733100005411.jpg
vsszan1209733100005412.jpg



城市营销的开放舞台
自i-Punkt游客中心向上眺望,玻璃天井将视线引向二楼的会议室、工作坊及活动室。这些空间同属公司办公区,也面向外界开放租赁,体现了“游客之家”灵活、包容与多功能的开放定位。三个可租用区域虽配置各异,但均能俯瞰熙攘的中心广场。在色彩与材质运用上,我们延续了该公司的企业视觉系统,以此增强环境的辨识度与员工的归属感。


vsszan1209733100005413.jpg
vsszan1209733100005414.jpg
vsszan1209733100005415.jpg
vsszan1209733100005416.jpg
vsszan1209733100005417.jpg
vsszan1209733100005418.jpg
vsszan1209733100005419.jpg
vsszan1209733100005420.jpg
vsszan1209733100005421.jpg
vsszan1209733100005422.jpg

办公空间中的城市共鸣

vsszan1209733100005423.jpg
vsszan1209733100005424.jpg



横跨三层的工作空间,为两家营销公司提供了从深度专注到开放协作的多元场景。每层的茶水间与休闲区均围绕建筑原有的椭圆形楼梯间布局。在弧形的后墙内,壁龛式座位与收藏盒式储物架将功能性与叙事性巧妙结合,其陈列的精选物件在各楼层间编织出一条连贯的故事线。
与此同时,市场广场的景致始终如影随形。在此,斯图加特的城市脉搏不仅被亲眼见证,更能被实时感受,使工作空间的氛围与核心使命同这座城市的精髓紧密相连。


vsszan1209733100005425.jpg

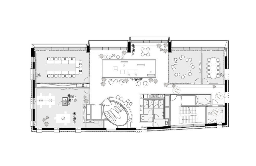
平面图

vsszan1209733100005426.jpg
Level 00
vsszan1209733100005427.jpg
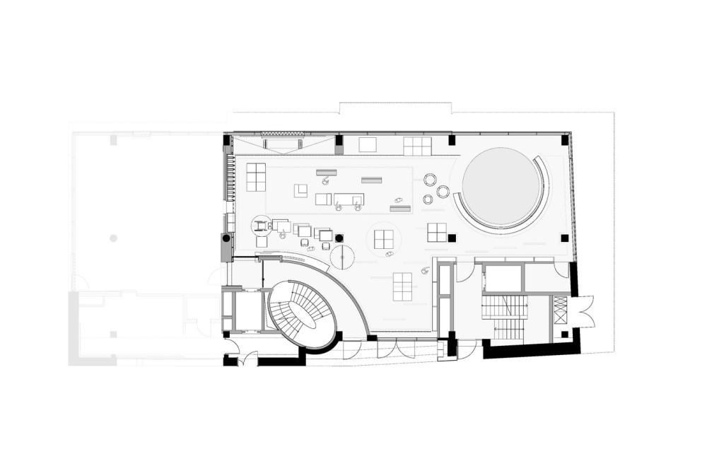
Level 01
vsszan1209733100005428.jpg
Level 02
vsszan1209733100005429.jpg
Level 03



客户:Stuttgart-Marketing GmbH
状态:已完成(2025)
摄影:Philip Kottlorz
专业知识:概念店工作空间展台 & 陈列
版权:Ippolito Fleitz Group
团队:Arsen Aliverdiiev、Manu Dhanked、Timo Flott、Christelle Foulon、Sophie Hillebrand、Andrea Martinez、Isabel Pohle、Markus Schmidt
合作伙伴:asp Architekten, 建筑师、Studio Tillack Knöll, 导向标识与空间图形

    • 转自:Ippolito Fleitz Group
    • 图片©Ippolito Fleitz Group
    • 编辑:序赞网
    • 阅读原文
    AI文本分析中……
    AI色彩命名中……

    序赞Ai时刻等待着你的命令!~

    与Ai对话形式持续执行相关Ai智能体任务。

    暂时没有评论,你回一个呗!~

    您需要登录后才可以回帖 登录 | 注册序赞号

    快速回复 返回顶部 返回列表