
- 平面规划
- >
- 住宅
- >
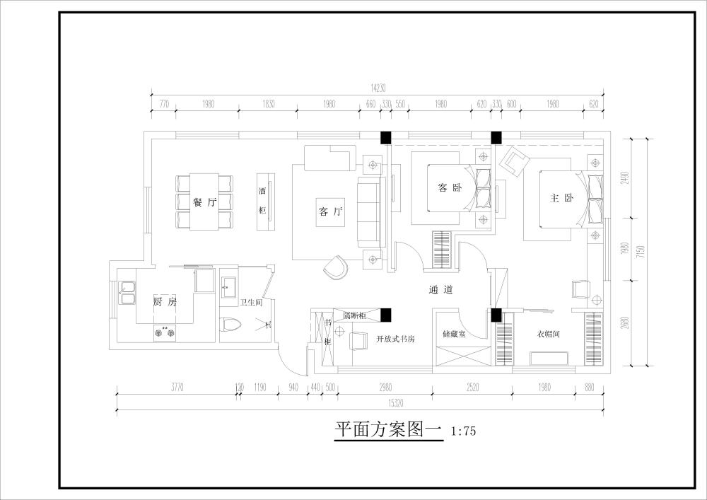
- 110平方寻求更好的平面布置方案
- 2014-04-09
- 9785
- 5
- 4
AI文本分析中……
AI色彩命名中……
序赞Ai时刻等待着你的命令!~
与Ai对话形式持续执行相关Ai智能体任务。
盒子茼學2014-4-12 16:25:35
| |
摄计佳2014-4-13 10:27:09
| ||
摄计佳2014-4-13 10:37:53
| |
盒子茼學2014-4-13 21:09:47
| ||
7741039802014-4-13 22:57:12
| ||
盒子茼學2014-4-14 20:23:12
| |
wanglian01022014-4-14 20:46:59
| |
夜的第七章20122014-4-14 23:38:51
| |
夜的第七章20122014-4-14 23:40:56
| |
摄计佳2014-4-14 23:45:36
| ||





